和泉市鶴山台1丁目 中古一戸建て
- 価格
-
2,380万円
返済例月々-円
- 面積
-
建物面積:
151.57㎡
土地面積:
297.10(89.87坪)㎡ - 間取り
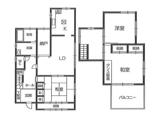
- 3SLDK
和泉市鶴山台1丁目 中古一戸建ての物件写真
和泉市鶴山台1丁目 中古一戸建てのアクセスマップ
和泉市鶴山台1丁目 中古一戸建ての物件概要
| 物件番号 | 17372 |
|---|---|
| 住所 | 和泉市鶴山台1丁目 |
| 最寄駅 | 阪和線 北信太駅 徒歩17分 |
| 小学校区 | 鶴山台北小学校 まで徒歩3分 |
| 中学校区 | 信太中学校 まで徒歩9分 |
| 間取 | 3SLDK |
| 土地面積 | 297.10㎡ |
| 土地権利 | 所有権 |
| 地目 | 宅地 |
| 都市計画 | 市街化区域 |
| 用途地域 | 第一種低層住居専用地域 |
| 建物面積 | 151.57㎡ |
| 築年月日 | 1989年12月 |
| 構造 | 木造 2階建 |
| 建ぺい率 | 40% |
| 容積率 | 80% |
| 現況 | 空家 |
| 引渡 | 即時 |
| 取引態様 | 仲介 |
| 物件登録日/価格 | 2025/09/20 2,380万円 |
| 価格更新日/価格 | 2026/03/27 2,380万円 |
| 情報更新日 | 2026/03/27 |
| 次回更新予定日 | 2026/04/26 |
和泉市鶴山台1丁目 中古一戸建てのローンシミュレーション
借入額2380万円(税込)
金利% 年ローン
現在の店頭基準金利は2.675%
- 毎月返済額
- 円
頭金0円でボーナス払いなしの場合の金額です。
また、お客様のご条件により金利の優遇幅が変動する場合があります。
返済例は全額ローン(ボーナス返済0円)、元利金等支払、借入期間35年、変動金利(金利優遇適用後)の0.575%にて計算(現在2026年04月適用)
住宅ローンシミュレーターを用いて算出したものであり、実際の借り入れ事例を示すものではなく、また、実際の支払い金額と若干計算結果が異なる場合があります。金利優遇にはいくつかの条件がございます。条件等により優遇が適用されない場合もございます。上記金利は、優遇金利を確約するものではありません。また、お借り入れの際は、銀行事務手数料等別途諸費用が発生する場合がございます。詳細につきましては上記金融機関公式サイト、もしくは弊社住宅ローンアドバイザーにご相談ください。





